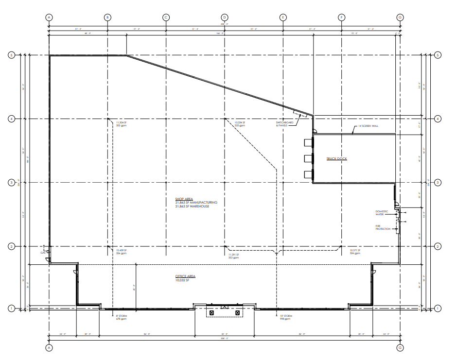
Atlantic Boulevard, Auburn Hills, MI – 53,758 Sq Ft
Available for Lease
No
Lease Rate
TBD
Building Size
53,758 sq ft
Lot Size
4.63 acres
Project Brochure
Project Description
63,880sqf Light industrial building with over 130 parking spaces and 6750sqf of office space.




